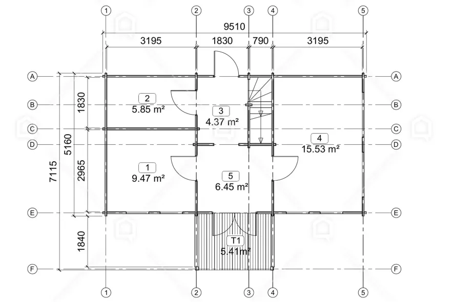
Casa de madeira de férias “Denver” para uma família de tamanho médio. “Denver” é uma casa de férias de madeira com dois andares e tamanho médio. casa tem uma cozinha, uma sala de estar, dois quartos, e uma casa de banho – uma autêntica casa de sonho! Se procura por casas pré fabricadas de média dimensão, “Denver” é uma casa de férias de estilo clássico com 60 m² de área útil. Esta confortável casa de formato longo e de tamanho médio é adequada para uma família de tamanho médio. A entrada principal da casa apresenta um telhado do estilo pórtico. Este projeto de casa de férias de madeira inclui uma sala de estar bastante grande, onde cabe perfeitamente tanto um sofá-cama como uma mesa de café com poltronas, uma cómoda com televisão ou outro mobiliário de descanso necessário. No rés-do-chão existe uma cozinha de quase 10 m², uma casa de banho de quase 6 m² e um corredor. No segundo andar da casa, estão previstos dois quartos do mesmo tamanho, um dos quais pode ser mudado para escritório ou closet. Esta casa de madeira distingue-se de outras casas pré fabricadas por apresentar janelas altas, que não só dão um ar moderno, mas também deixam entrar mais luz, expandindo visualmente o espaço e tornando o interior da casa mais luminoso e acolhedor. As janelas de alta qualidade estão incluídas no preço da casa de Verão. Tal como acontece com as outras construções que oferecemos, a casa de madeira “Denver” pode ser desenhada de acordo com as suas necessidades. Contacte-nos e fale-nos sobre as suas ideias, e nós iremos transformá-las em realidade, desenhando e construindo a sua casa! Quer saber o preço das casas pré fabricadas? Contacte-nos!















